Nouvelle recherche

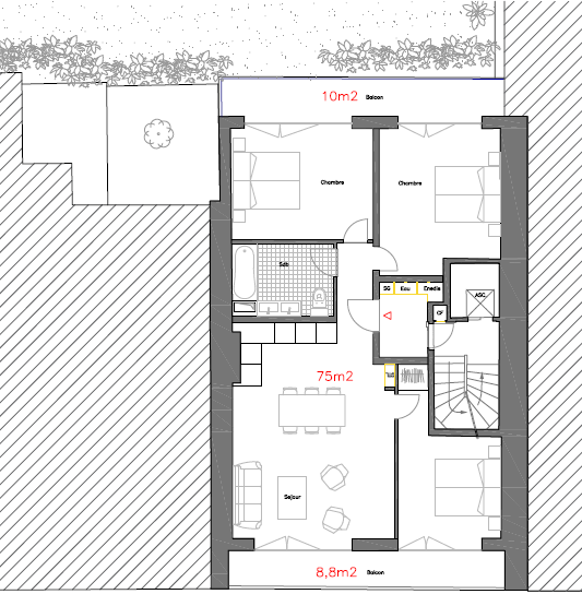
PARIS 15EME : CONVENTION / RUE SÉBASTIEN MERCIER - APPARTEMENT 75M2 - 3 CHAMBRES + TERRASSES

Vendu
Prix : 1 150 000,00 
Honoraires à la charge du vendeur.
Type de bien : Appartement
4 pièces / 3 chambres
Surface : 75,00m²
Localité : Paris (75015) France
Vendu
Référence : VE-00077

Description du bien

PARIS 15ème / CONVENTION – RUE SÉBASTIEN MERCIER - PROCHE BEAUGRENELLE  (RARE A LA VENTE)
Au cinquième étage avec ascenseur d'un immeuble de très haut standing aux parties communes entièrement neuves, exceptionnel appartement de 75m², au calme absolu, avec terrasses. Cet appartement traversant comprend une belle entrée, une cuisine américaine, un très agréable séjour salle-à manger donnant sur une large terrasse, deux chambres également sur terrasse, une salle de bain, un WC. Une cave complète ce bien. Parking dans l’immeuble possible en sus. Appartement très lumineux et idéalement situé, à proximité immédiate des commerces, transports, écoles. Très bon produit, seul à l’étage, avant dernier étage, calme, FRAIS DE NOTAIRE REDUITS.
Cabinet d'Avocats Jean-David GUEDJ & Associés - Transactions immobilières - Honoraires à la charge du vendeur.
Contact: Madame Sabrina DRAY 06.51.39.10.68

Caractéristiques

En copropriété : oui
Numéro d'étage : 5
Nombre d'étages : 6
Année de construction : 2021
État général : Neuf
Exposition : sud
Cuisine : oui
Nombre de salles de bain : 1
Nombre de WC : 1
Terrasse : oui
Nombre de terrasses : 2
Surface de la terrasse : 20,00 m²
Parking : oui

Commodités

Ascenseur : oui
Cave : oui
Digicode : oui
Interphone : oui

Mandat

Téléphone mandataire : 0651391068
Négociateur : Sabrina DRAY

Cette annonce m'intéresse

Captcha
* Les champs suivis d'un astérisque sont obligatoires.

Les informations recueillies sur ce formulaire sont enregistrées dans un fichier informatisé par le cabinet permettant de répondre à votre demande. Elles sont conservées le temps nécessaire au traitement de votre demande, et sont destinées à être transmises à l'avocat compétent pour répondre à votre demande. Conformément au Règlement relatif à la protection des personnes physiques à l'égard du traitement des données à caractère personnel et à la libre circulation de ces données, toute personne peut exercer ses droits d'accès, de rectification, de portabilité et d'opposition des informations la concernant.